Details

Call 01344 876666 to request a viewing

ALDRIDGE PARK, WINKFIELD ROW, BERKSHIRE, RG42 7NU

£550,000 : Under Offer

Description
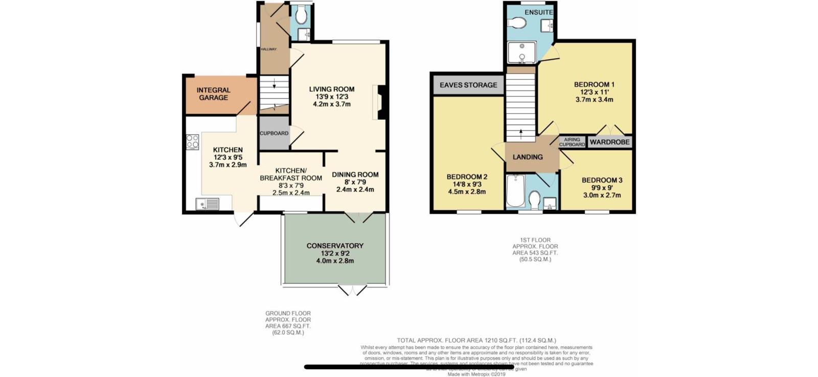
A stylish three double bedroom Link-Detached family home which is set in the ever-desirable Village of Winkfield Row. The current vendors have upgraded and adapted the internal space to create an excellent semi open plan home. The well thought out layout flows very well and provides practical living space. Downstairs you will find an open plan living dining room which leads onto the kitchen space and conservatory. Upstairs there are three double bedrooms with the master bedroom boasting an En-Suite shower room. Outside you will find a private rear garden along with driveway parking to the front, the garage is partially converted and now provides a small storage section.


Directions:
From the Heatherwood Hospital roundabout, take the A329 towards Bracknell. At the second set of traffic lights turn right into Priory Road,
Continue to the end and the road becomes Locks Ride. After a short way turn left into Chavey Down Road and continue for approx 1/4 mile and turn left into Carnation Drive. At the roundabout, take the first left into Aldridge Park.
Bedrooms

3

bedrooms

Receptions

2

receptions

Bathrooms

2

bathrooms

Features
  • Link detached family home
  • 3 double bedrooms
  • Open plan living/dining/kitchen
  • Refitted modern bathroom and en-suite
  • Conservatory
  • Driveway parking
  • Enclosed rear garden
  • Popular Carnation Drive development.
  • Catchment for Winkfield St Marys Primary School
Request a Viewing

Call 01344 876666 or complete the following form:




    NOTE: These particulars are intended only as a guide to prospective Purchaser/Tenants to enable them to decide whether to make further enquiries with a view to taking up negotiations but they are otherwise not intended to be relied upon in any way for any purpose whatsoever and accordingly neither their accuracy nor the continued availability of the property is in any way guaranteed and they are furnished on the express understanding that neither the Agents nor the Vendors are to be or become under any liability or claim in respect of their contents. Any prospective Purchaser/Tenant must satisfy himself by inspection or otherwise as to the correctness of the particulars contained.